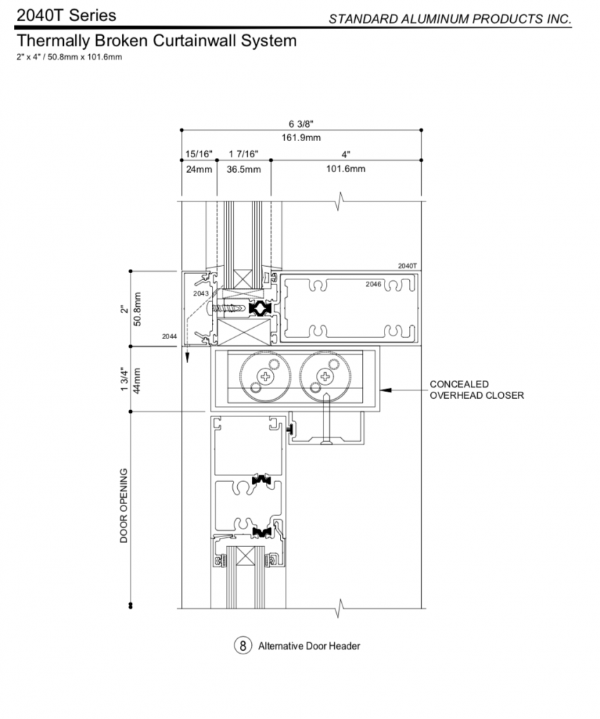
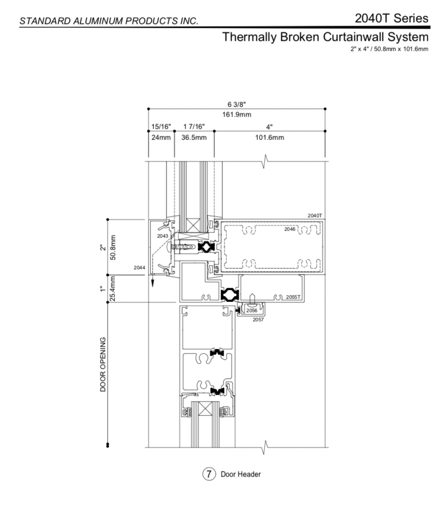
Design
A high performance flexible system for use as a multi-storey pressure capped Mullion with screw ports or solid stick shear block unitized system. Features include thermally broken strut system, split colour and door adapters for any Standard Aluminum door.
Performance
Structural design and performance shall be based on CSA Standard CAN3-S157, “Strength Design in Aluminum”, and a maximum deflection of L/175 of the span. The minimum requirements shall be based on the following ASTM test standards: E-283 Air Infiltration, E-331 Water Penetration, E-330 Structural Performance.
Materials
Extrusions shall be AA 6063 T6 alloy and Temper – Fy =170 MPa (25 KSI) minimum. 6063 alloy provides high quality surface finish, good resistance to general corrosion, including resistance to stress corrosion cracking. Recommended assembly fasteners and anchoring bolts shall be sufficient strength and size made of corrosion-resistant and compatible material such as cadmium or zinc plated carbon steel or stainless steel. Direct contact of dissimilar metals can cause galvanic corrosion. Glazing gaskets shall be EPDM elastomeric extrusions designed for the system as required for conventional dry-dry outside glazing method.
Finish
Anodized and painted finished are available. All integral colour anodizing is Architectural Class II (0.4-0.7 mils thick). A fluropolymer paint coating meets or exceeds to the requirements of AAMA 2603.98 and AAMA 2605.98 specifications.
Installation
All frames shall be installed by experienced technicians in accordance with approved shop drawings bearing the seal of a registered professional engineer. The frames shall be set plumb, square and level and in correct alignment with adjacent construction.
Fabrication
Fabrication and assembly shall be in strict accordance with the approved shop drawings. Aluminum mullions shall be connected accurately to each other by a standard spigot method properly sealed at all joints to assure air and water tight installation.
Protection and Cleaning
After installation the general contractor should adequately protect the exposed aluminum and glass surfaces from damage by other trades. I.E. (but not restricted too) cement splash and leach, grinding, polishing compounds, plaster, paint, lime, acids, and other components.

