Design
The system shall be 4 x 1 center line flush glazing and accommodate glass from 3mm to 10mm thick. The system can be glazed from interior or exterior and is dry glaze.
Performance
See Wind load Charts.
Structural performance shall conform to CSA Standard CAN3-S157 design in and a maximum deflection of 1/175 of the span.
Material
Extrusions shall be 6063 alloy and T5 Temper. Glazing gaskets shall be EPDM elastomeric extrusions.
Finish
Both anodized and painted finishes are available. All integral colour anodizing is Architectural Class II., 0.4 to 0.7 mm coating. A fluropolymer paint coating conforming to the requirements of AAMA 603 and AAMA 605 specifications, the toughest coating in the industry standards.
Testing
All testing shall be on full size frame sections. Air infiltration shall be tested in accordance with ASTM-Designation E283-91 or ASHRAE standards #90-80
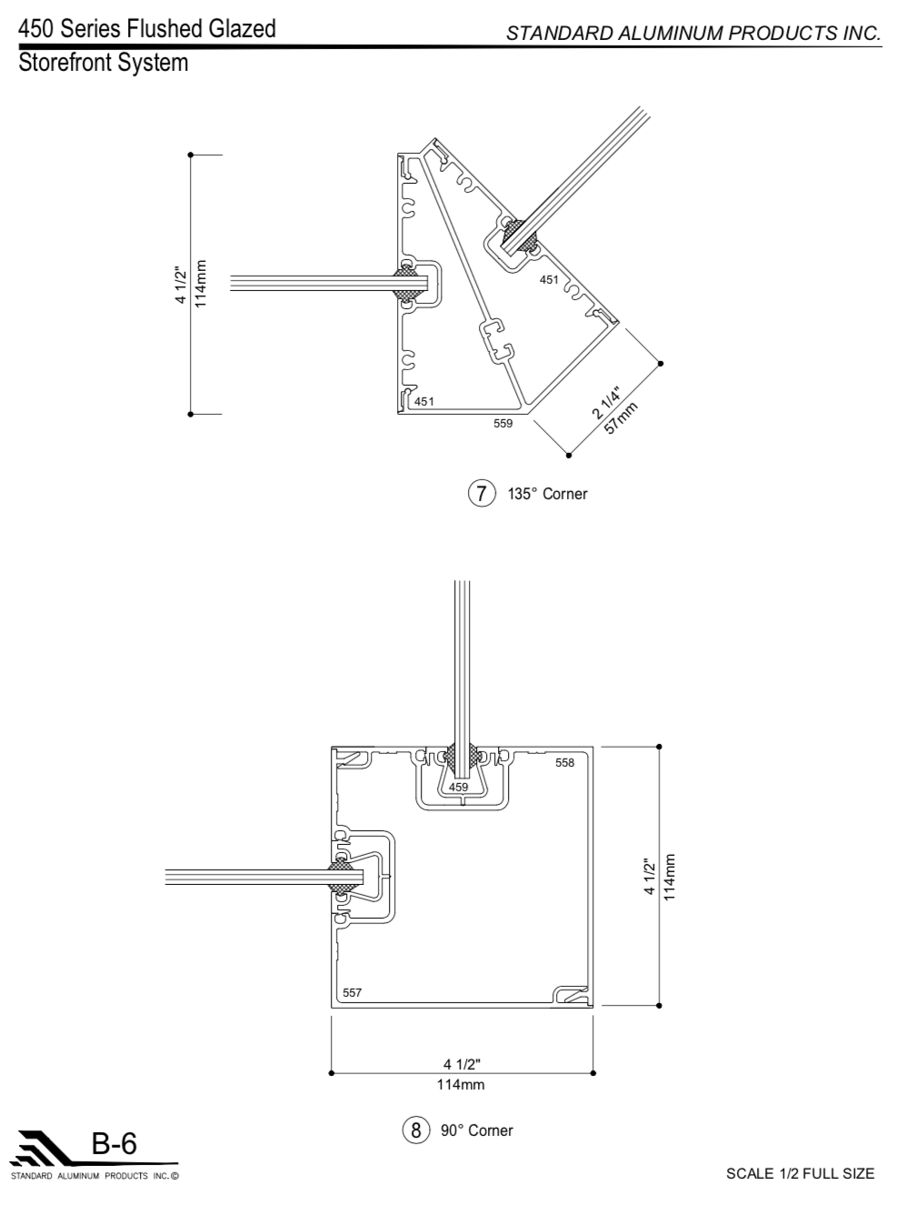
Fabrication
Framing should be fabricated from extrusions of size and shape in accordance with shop drawings. The framing system shall provide for flush glazing while maintaining
The 450 Series has a complete number of sections including deflection header and extruded sub sill runner that can satisfy any design requirements.
Construction
Frames shall have mechanically joined corners with no exposed screws. All joints shall be accurately fitted free of burrs and rough edges. Complete frame assemblies shall be free of warp. Each type of entrance framing systems is compatible with all Standard Aluminum swing doors and sliding mall fronts.
Installation
Experienced technicians in accordance with approved shop drawings shall install all frames. The frames shall be set plumb, square, and level and in correct alignment and adjacent construction. All anchoring shall suit the type of construction of the perimeter work.
Protection and Cleaning
After installation the general contractor should adequately protect the exposed aluminum and glass surfaces from damage by other trades. i.e.(but not restricted to) cement splash and leach, grinding, polishing compounds, plaster, paint, lime, acids and other contaminants.








